Pralin Residence

Pralin Residence

Refine your search

Guests
Add vacationers
Adults 13 years and older
Children From 3 to 12 years old
Babies From 0 to 2 years old
Filter

Filter results

{{filterSelected.length}}
Sort by :
Adults 13 years and older
Children From 3 to 12 years old
Babies From 0 to 2 years old

{{compteurFiltreCategorie(index)}}
Limited availability
{{pctDispo}}
Very popular establishment
0 people booked it this week
Price increasingBook before prices go up

The accommodations that match your selection

With the dates of to

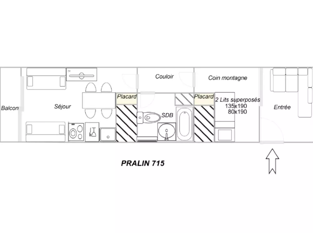
Accommodation details

-{{pourcentage}}% {{barrePrice}}€ {{finalPrice}}€/pers.
This accommodation is unavailable on your dates. Try other dates or continue your search for accommodation.

Une formule ski ?

Description of the residence

The residence Les sentiers du Tueda - Le Pralin is located at the foot of the slopes and just above the Chatelet shopping center. You are close to the ESF meeting point and the Piou-Piou kindergarten.

To access the slopes, you just have to cross a small square to reach the main departure of the slopes. The nearest shuttle stop is at the foot of the mini-market "Chatelet", about 100m from the residence.

Customers' opinion

3.5/5 out of Avis vérifiés

Calculated from 2 opinions obtained over 5 years

These reviews have been automatically translated

They may contain approximate wording, we thank you for your understanding.

Customers' opinion

Sort by:

No results for “{{query}}”.

Informations

Address

419 route du Châtelet

73550 LES ALLUES

route
By the road
A 43 motorway to Albertville.
Then RN 90 (2 x 2 lanes) to Moûtiers.
Then D 90 for 18km (equipment recommended).
• Geneva / Méribel 120 km
• Lyon / Méribel 200 km
• Paris / Méribel 630 km
• London / Méribel 1060 km

By train
Méribel is 18 km from Moûtiers-Salins SNCF station.
TGV connections with Brest, Le Havre, Lille, Nantes, Paris, Versailles, Poitiers, Tours, Quimper, Rennes, Rouen, Cherbourg, Brussels by Thalys and London by Eurostar.

Key delivery times:

14:00-19:00

f