Creux De L Bear D Residence

Creux De L Bear D Residence

Refine your search

Guests
Add vacationers
Adults 13 years and older
Children From 3 to 12 years old
Babies From 0 to 2 years old
Filter

Filter results

{{filterSelected.length}}
Sort by :
Adults 13 years and older
Children From 3 to 12 years old
Babies From 0 to 2 years old

{{compteurFiltreCategorie(index)}}
Limited availability
{{pctDispo}}
Very popular establishment
0 people booked it this week
Price increasingBook before prices go up

The accommodations that match your selection

With the dates of to

Accommodation details

-{{pourcentage}}% {{barrePrice}}€ {{finalPrice}}€/pers.
This accommodation is unavailable on your dates. Try other dates or continue your search for accommodation.

Une formule ski ?

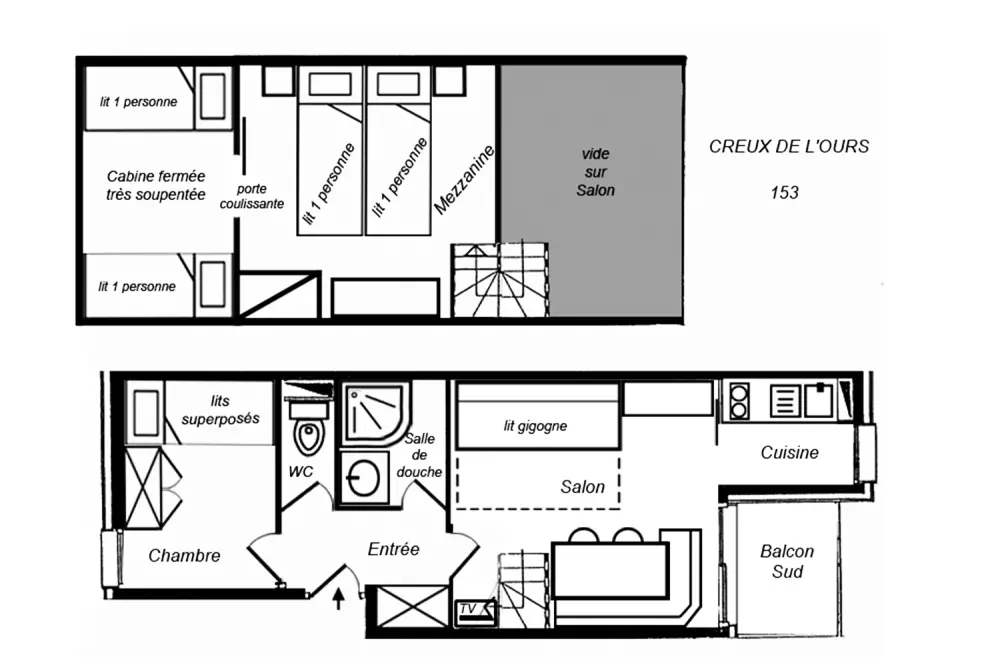
Description of the residence

The Creux de l'ours residence is located in the heart of the Hameau, in Laitelet. It is located at the foot of the slopes and shops.

To reach the slopes from the apartment, go to the ski lockers in the residence, then cross a square to access the green "Perdrix" slope which leads to the main departure point of the ski lifts.

Access to the HAMEAU and LAITELET districts is via the Téléporté des Chalets, open from 7:20 a.m. to 11:30 p.m. with free access.

Customers' opinion

4.8/5 out of Avis vérifiés

Calculated from 4 opinions obtained over 5 years

These reviews have been automatically translated

They may contain approximate wording, we thank you for your understanding.

Customers' opinion

Sort by:

No results for “{{query}}”.

Informations

Address

2201 route du Laitelet

73550 LES ALLUES

route
By the road
A 43 motorway to Albertville.
Then RN 90 (2 x 2 lanes) to Moûtiers.
Then D 90 for 18km (equipment recommended).
• Geneva / Méribel 120 km
• Lyon / Méribel 200 km
• Paris / Méribel 630 km
• London / Méribel 1060 km

By train
Méribel is 18 km from Moûtiers-Salins SNCF station.
TGV connections with Brest, Le Havre, Lille, Nantes, Paris, Versailles, Poitiers, Tours, Quimper, Rennes, Rouen, Cherbourg, Brussels by Thalys and London by Eurostar.

Key delivery times:

17:00-19:00

f